5 Rue René-Lévesque
New Carlisle
New Carlisle
Vendu
Maison à étages à vendre
New Carlisle séduit par sa quiétude, ses plages accessibles et aménagées. Cette maison lumineuse, à aire ouverte, bénéficie d'une vue panoramique sur la mer et s'y trouve à 5 minutes de marche. Elle propose une cuisine rénovée avec goût, fonctionnelle et dotée de nombreux rangements. La chambre principale, spacieuse et située en mezzanine fermée, crée un espace intime et lumineux. Le zonage permet la location du sous-sol après aménagements. Un garage détaché de 20 x 30 pi avec un 2e étage, offre tout l'espace nécessaire pour vos projets. Le terrain, orienté plein sud et à faible pente, est parfait pour le jardinage et le paysagement.
2+1
1+2
83.56m2
1848.5m2
Bâtiment
Armoires
Bois, Mélamine
Mode de chauffage
Plinthes électriques
Approvisionnement en eau
Municipalité
Énergie pour le chauffage
Électricité
Fenêtres
PVC
Fondation
Béton coulé
Garage
Détaché
Sous-sol
6 pieds et plus, Totalement aménagé
Système d'égouts
Municipal
Type de fenêtre
Coulissante
Vue
Panoramique, Sur l'eau
Construit en
1981
Dimensions
10.38m x 7.32m
Terrain
Allée
Non pavée
Aménagement du terrain
Paysager
Revêtements
Pierre
Stationnement
Au garage(1), Extérieur(3)
Toiture
Bardeaux d'asphalte
Topographie
En pente, Plat
Dimensions
48.77m x 38.1m
Autres caratéristiques
Zonage
Résidentiel
Évaluation
Évalué en 2025
Inclusions
Aspirateur central et accessoire, serre artisanal du jardin, luminaires, toile de la porte patio, stores,5 Rue René-Lévesque , New Carlisle
24375467
Pièces
Pièce
Étage
Plancher
Informations
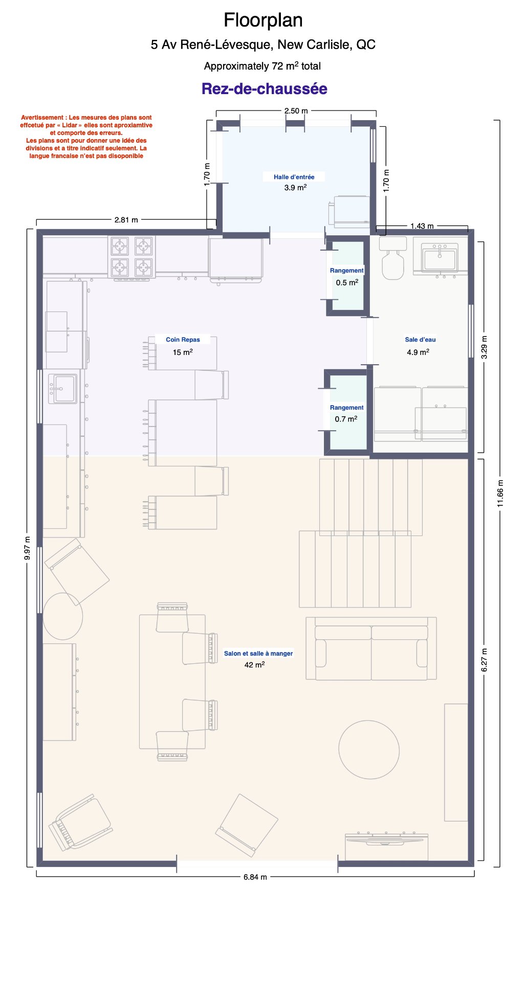
Hall d'entrée(7.4x7.9 pi.)
Rez-de-chaussée
Céramique
Salle d'eau(10.8x5 pi.)
Rez-de-chaussée
Céramique
Coin repas(18.3x14.4 pi.)
Rez-de-chaussée
Bois
Salon(13.2x21.10 pi.)
Rez-de-chaussée
Bois
Chambre à coucher principale(14.6x9.6 pi.)
2ième étage
Plancher flottant
Salle d'eau(10.4x4 pi.)
2ième étage
Couvre-sol souple
Chambre à coucher(10.7x8.3 pi.)
Sous-sol
Plancher flottant
Cave/ chambre froide(7.6x8.3 pi.)
Sous-sol
Béton
Chambre à coucher(11.6x7.9 pi.)
Sous-sol
Plancher flottant
Salle de bains(7.3x5 pi.)
Sous-sol
Couvre-sol souple
Salle familiale(13.6x15.8 pi.)
Sous-sol
Plancher flottant
Cuisine(11.6x5.10 pi.)
Sous-sol
Plancher flottant
5 Rue René-Lévesque , New Carlisle
24375467
Photos















5 Rue René-Lévesque , New Carlisle
24375467
Photos















5 Rue René-Lévesque , New Carlisle
24375467
Photos















5 Rue René-Lévesque , New Carlisle
24375467
Photos















5 Rue René-Lévesque , New Carlisle
24375467
Addenda
Les vendeur sont aussi propriétaires du terrain au coin de Vimy et Rene-levesque (lot 4 933 095) et seraient prêt à l'inclure (au montant de 25 000$ de plus) à la vente du 5 Rene-Levesque. « rafraichissement et rénovations » : Remplacement des fenêtre et des portes, rénovation de cuisine, rafraichissement de salle de bain, remplacement de toiture, rafraichissement de peinture, chambre mezzanine avec ajout de portes coulissantes d'intimités.
5 Rue René-Lévesque , New Carlisle
24375467

